丹麥Mors?始于1853年,丹麥皇室御用特供商,蜚 聲 世 界 的 “壁 爐 之 王”,Mors?,讓生活更溫暖。
今天介紹的這款丹麥壁爐Mors? S101,它讓我徹底改變了對大尺寸壁爐的固有印象。原來,大象也可以跳舞。
爐邊晚餐,丹麥 · 哥本哈根
丹麥morso S101壁爐獨具特色的懸浮燃燒模式,火焰若隱若現,飄渺莫測,像極了傍晚的火燒云,讓人嘆為觀止。
一、硬核參數獨步天下

上圖顯示了S101的性能參數,大幅領先歐洲最嚴格的能效和環保標準——Eco Design 2022的要求:燃燒效率高出標準規定值11.2%,一氧化碳殘留量比標準值低40%,氮氧化物排放量低47%,烴化物排放量低34.2%,顆粒物排放量低40%……當很多壁爐制造商還在為趕在2022年1月1日前達標而絞盡腦汁的時候,Mors?早已把標準遠遠甩在身后。S101以其一系列硬核參數躋身當代最清潔環保壁爐之列,以實力再次證明了Mors?“壁爐之王”的美譽實至名歸。
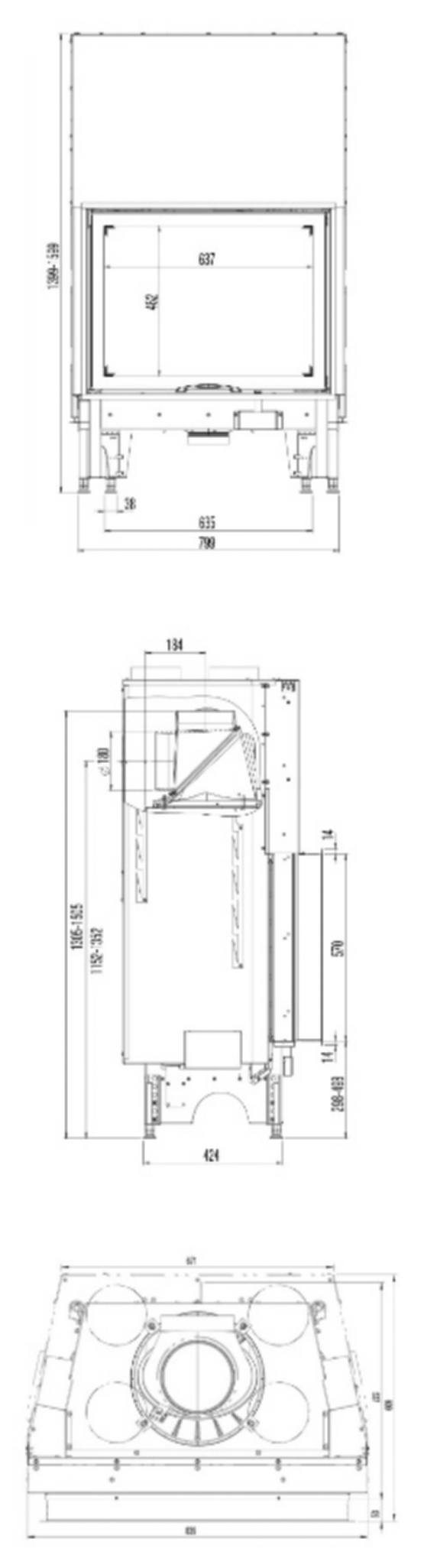
S101的峰值功率為16.8kW,燃燒效率83.4%,能效等級為最高的A+級別,煙囪口徑180mm,爐膛容積約78L,可容納50cm長的超大木柴,供暖面積85~210㎡,適合安裝在面積較大的客廳中。S101有兩個子型號:S101-11裝配的是橫開自吸式爐門,S101-12采用的是垂直提拉式爐門,后者的機械結構更復雜,價格也更貴些。本文以S101-12為例來講解該壁爐的技術特點,以下簡稱S101。

二、何以如此與眾不同?
低水平的重復不能帶來革命性的進步,S101的燃效效率能達到如此高的水平,Mors?一定做了些別人沒有做或者做不到的事情,下面我們就深入了解一下這款壁爐里面的黑科技。
1、Keramott爐膛內襯
大尺寸壁爐是為了燃燒大塊木柴而設計的,因此爐膛內襯材料首先要堅固,耐撞擊,同時保溫性能要好。我們知道,蛭石板保溫好但強度低,石板或者鑄鐵板雖然強度夠,但保溫不佳。目前歐洲壁爐制造商普遍選擇高鋁耐火磚(主要成分是鋁礬土)作為爐膛內襯材料,它的保溫性能雖然比石板和鑄鐵板要好很多,但要想達到Eco Design要求的75%的燃效效率還是顯得力不從心。
為了解決強度與保溫這對矛盾,Mors?專門研發了一種特殊的耐火保溫材料,命名為Keramott,配方和制造工藝是保密的,官方資料只透露說 “這是一種具有極高保溫傳導比的耐火黏土,性能遠超目前廣泛使用的耐火保溫磚,它能讓爐膛迅速升溫,實現清潔燃燒。在高溫下,Keramott會變得愈發堅硬,而且不會被熏黑,爐膛始終保持潔凈如新”。簡而言之,這是一種兼具耐火磚的強度與蛭石板優異保溫性能的新型材料。

新爐膛

木柴燃燒時的爐膛

使用三個月后的爐膛
燒過整整一個冬季后,S101的爐膛,依舊潔凈如新,完全沒有熏黑的痕跡。有人可能對此不以為然,但如果與其它壁爐對比一下,你就會發現這是一件多么神奇的事情。下圖是我們常見的黑黢黢的爐膛,而且會越燒越黑。怎么樣?沒有對比就沒有傷害吧?

普通壁爐使用后的爐膛
2、SuperMax爐門玻璃
人們都喜歡觀火視窗大的壁爐,因為看起來更氣派,能看到完整的火焰。然而,大玻璃會讓熱量迅速散失,嚴重削弱爐膛保溫性能,無法達到或者長時間維持清潔燃燒所需的超高爐溫,導致燃燒效率低下。此外,配有大尺寸觀火視窗的壁爐通常制熱功率大,靠近爐門會讓人感到燥熱難當。要想提高效率并改善舒適度就必須提高觀火視窗的保溫性,既要讓它阻擋住一部分熱量,但同時又不能妨礙觀賞火焰,這又是一個兩難的選擇。
Mors?向自己的老搭檔,德國肖特(Schott)公司提出了要求:開發一款新型爐門玻璃,保持現有厚度不變,顏色不變,清晰度不變,耐高溫性能不變,但要阻擋住一半熱量!肖特公司也不負眾望,研發出了符合Mors?要求的微晶玻璃Robax SuperMax。

SuperMax是一種特殊的鍍膜玻璃,它對可見光(波長350nm~750nm)沒有阻礙,但能將超過一半的波長從800nm到8000nm的紅外線(也就是熱量)反射回爐膛。簡單來說,你可以清晰地看到火焰,但不會有熾熱的感覺,我們可以認為SuperMax是一種完全透明的耐高溫保溫材料。


我們用測溫槍分別測量一下爐門玻璃和火焰的溫度就能感受到SuperMax起到的作用。

爐門處于關閉狀態

爐門處于打開狀態
在點火半小時后我們用測溫槍分別測量爐門玻璃的溫度(爐門關閉)以及火焰的實際溫度(爐門開啟),測得的數據分別是318℃和619℃,這證明了這塊4mm厚的Supermax微晶玻璃確實阻擋住了一半的熱量,我們站在壁爐前感到很暖和,但又不會烤得難受,爐邊溫度始終保持在舒適而不燥熱的水平。
SuperMax將更多熱量反射回爐膛可以大大縮短預熱時間,更快達到清潔燃燒需要的爐溫并可以長時間保持高溫,這一方面會提高燃燒效率并減少顆粒物排放,另一方面超高溫也會把偶爾附著在玻璃內壁上的炭黑徹底燒光,使觀火視窗始終保持通透潔凈,使用多日才需要擦拭一次。
根據Mors?官方給出的數據,僅有34%的熱量是通過S101觀火視窗輸出的,這就意味著還有大量熱量是通過爐體和煙管外壁散發的,不能讓這些熱量聚積在壁爐墻壁里,否則有可能導致壁爐過熱而損壞。通過成對兒安裝透氣窗可以方便地把熱量引出到房間里,如此供暖效果最佳,也是歐洲壁爐安裝的標準做法。

頂部熱風出口百葉窗的實測溫度為89℃,壁爐墻體表面溫度為30~46℃,整個壁爐封閉結構實際上是一個巨大的散熱器,它通過對流和輻射把木柴燃燒產生的熱量緩慢而持久地釋放出來,熱量在建筑物內分布更均勻,溫度波動幅度更小。
3、U型軌道+ExtraFlex墊圈 = 極致密封
Mors?的研發指導原則是“極致的效率和環保”。Mors?認為允許提拉式爐門在任意位置懸停會鼓勵開放燃燒的行為,那將給環境帶來負面影響。因此,S101的爐門被設計成只允許在最高點懸停以方便加柴和清灰,在其他任何位置松開手,爐門都會自動下滑并完全關閉。爐門運行到最低點時會沿著U型軌道向斜下方滑行,在重力和彈簧力的雙重作用下緊緊地壓靠在門框上,這是一個十分精巧的設計。在即將關閉的那一刻,爐門像被磁鐵吸過去一樣,有一個加速靠攏的過程,你能明顯地感受到什么叫做密不透風。

S101采用了德國ExtraFlex爐門密封墊圈,它的內部是用高彈性不銹鋼絲網管做成的骨架,外層是用E級長絨玻璃纖維編織成的套管,最外面是石墨涂層,用這種工藝制成的密封墊圈具有耐高溫,耐酸堿,耐磨損,強度高,彈性好,易彎曲等優點,可確保長久密封,幾乎不需要更換。

三、外觀、尺寸、重量
S101的體積比較大,我們最終看到的觀火視窗其實僅是整個壁爐的1/3,壁爐基座和收納提拉爐門的部分被隱藏在墻體后面。底腳高度可調,能讓壁爐門框的下邊緣在距離地面30~50cm的范圍內自由調節,如果希望觀火窗更高一些,可以建一個地臺,把壁爐放在上面再安裝。用扳手旋轉底腳螺栓可以方便地調整高度和水平,這為安裝提供了極大便利。S101凈重194kg,考慮到燃料及地臺的重量,樓板的承重能力至少要達到250kg/㎡。

壁爐側面和背面與墻體要保持至少10cm間距,方便空氣流動。壁爐封閉墻體必須采用親水的不可燃材料搭建,既要防火又要防冷凝,建議使用5cm厚的Skamol壁爐封墻板。S101爐門前方100cm及側面40cm范圍內不可放置可燃物,特別要注意遠離窗簾、衣物和布藝家具,以免它們在長時間高溫烘烤下起火燃燒。

四、如何操作 ?
S101只有一個進風控制桿,同時控制兩路進風:底部進風和頂部進風(也稱風洗進風),向左撥動增加進風量,反之減小。S101的進風控制既靈敏又精確,這要歸功于它極佳的密封性。對于大尺寸壁爐,尤其是配備提拉式爐門的壁爐來說要做到良好密封非常不容易,因為爐門面積越大密封難度就越大,提拉式爐門既要在導軌上滑動自如又要在關閉時密不透風,這對結構設計、材料強度、加工精度和裝配工藝提都出了極高要求。

S101不允許敞開爐門燃燒,松開手后爐門會自動下落直至完全關閉。這個特點讓S101的使用方法與傳統的橫開門壁爐有點兒小不同,主要體現在點火和加柴這兩個步驟上。我們知道,木柴在起始燃燒階段需要更多助燃空氣,所以在點火和添柴時我們通常要把爐門虛掩,留一道縫。同樣的,給S101點火和加柴時為了阻止爐門完全關閉,我們可以準備一根細木柴墊在爐門的下邊緣,空氣會通過留出的縫隙猛烈吹入爐膛,快速點燃木柴使其劇烈燃燒,待觀察到木柴已經完全燒起來后我們再抽出細木條,徹底關閉爐門。如果過早關閉爐門,木柴會缺氧燃燒,火焰暗弱無力,同時會產生大量的煙,這時需要重新打開爐門留出縫隙,讓更多空氣進入爐膛。
怎么擦玻璃呢?不會要把手伸到爐膛里去擦吧?放心,Mors?早就考慮到了。S101的爐門也可以橫向開啟,這個小機構就藏在爐門右邊框的上下兩處。讓爐門滑行到最低點處于完全關閉狀態,把上下兩個扳手向外扳開,爐門就可以橫向打開,這樣就可以輕松擦拭玻璃了。用濕潤的抹布輕輕擦除玻璃表面的浮灰,如有頑固污漬,可以蘸一點兒爐灰再擦,一擦就掉,非常輕松。切勿使用鋼絲球、百潔布等過于粗糙的東西擦玻璃,那會留下劃痕,破壞鍍膜層。

S101爐門上邊沿還有一個小機構用來控制爐門是否可以在最高點懸停。先將爐門徹底關閉,然后移動下圖中紅色箭頭指示的兩個滑塊向垂直中線靠攏,爐門就可以在最高點懸停。這樣的設計其實是為了兼容歐洲不同國家的標準要求,有的國家不允許爐門懸停。從使用的角度來說,能夠懸停當然更方便,因此我們交付產品的時候都會默認設置為可懸停模式。如果由于運輸顛簸引起滑塊移位,爐門無法懸停,用戶只需要按照上述步驟撥動滑塊即可恢復。

移開爐膛底部保溫磚可以看到進風口,為保持風路暢通,建議每隔兩個月用吸塵器清理一下保溫磚下方的爐灰。


評價:
這是一臺革命性的壁爐:懸浮燃燒,火焰收放自如,暖而不燥,爐膛越燒越白,視窗潔凈透亮,戶外進風……,集如此眾多優勢于一身使其成為當代壁爐的經典之作。它在效率、操控、耐久方面的表現已經足可以與Mors?的火爐系列相媲美,但卻擁有更大的爐膛和更強的供暖能力。Keramott保溫磚,SuperMax熱量反射玻璃,ExtraFlex密封墊圈等一眾新材料和新技術的應用讓這款壁爐獲得了83.4%的超高燃燒效率,使其無可爭議地躋身全球最清潔壁爐之列,在“碳中和”成為大趨勢的時代,它近乎零碳排放的特性將使其成為未來供暖的最佳解決方案之一。擁有大面積客廳且預算充足的客戶可以重點關注這款壁爐,它會給您的居家生活帶來無與倫比的舒適和樂趣,并以自己優異的性能向您證明這筆投資經得起時間的考驗,物超所值!
擁有壁爐,讓你的家與眾不同!
版權聲明:
平客原創,抄襲必究。本文已公證并獲得著作權保護,如欲轉載至面向公眾的紙媒或電子刊物,請撥打400-800-1492與我們聯系,未經授權的轉載有可能招致民事訴訟。